Budapest, VIII. kerület Vajdahunyad utca
Vajdahunyad utca, eladó 39 m2 -es tégla építésű lakás
Corvin negyedben eladó modern, új építésű penthouse lakás tágas terasszal
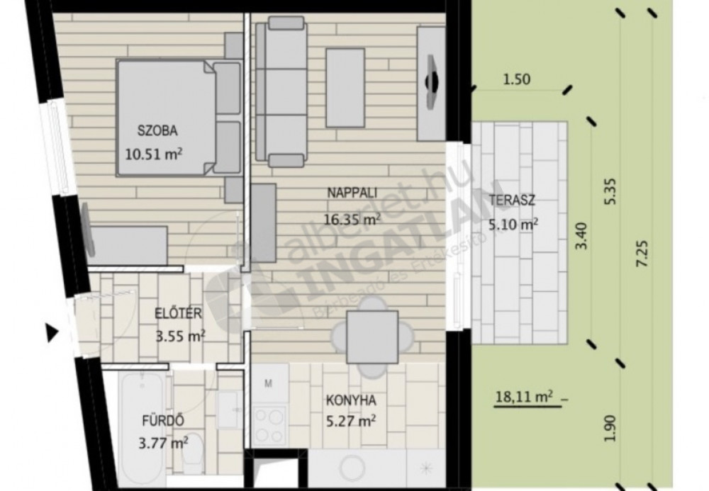
A Corvin negyed szívében, egy impozáns, újonnan épült társasház legfelső szintjén eladásra kínálunk egy 39 m²-es, világos és elegáns lakást, amelyhez egy különleges, 24 m²-es panorámás terasz is tartozik. Az épület magasságának köszönhetően a kilátás zavartalan, és hosszú távon is megmarad.
A lakás mindössze néhány perc sétára található a körúttól és a Corvin Plázától, így a közlekedés és a szolgáltatások könnyen elérhetők. A modern elrendezésű otthon nappaliból, hálószobából, korszerű konyhából és igényes fürdőszobából áll. A terasz többféle módon hasznosítható — akár wellnessrészleg, pihenőzóna vagy kerti grillező is kialakítható rajta.
A társasház korszerű, hőszivattyús mennyezeti fűtés-hűtés rendszerrel és kiemelkedő hőszigeteléssel rendelkezik, ami alacsony rezsiköltséget biztosít. Az ingatlan rövid távú bérbeadásra (Airbnb) is engedélyezett, így befektetési célra is kiváló választás.
A nyugodt környezet, a modern technikai megoldások és a környék folyamatos fejlődése garantálja, hogy ez az ingatlan nemcsak otthonként, hanem értékálló befektetésként is kiemelkedő lehetőséget nyújt.
A Corvin negyed szívében, egy impozáns, újonnan épült társasház legfelső szintjén eladásra kínálunk egy 39 m²-es, világos és elegáns lakást, amelyhez egy különleges, 24 m²-es panorámás terasz is tartozik. Az épület magasságának köszönhetően a kilátás zavartalan, és hosszú távon is megmarad.
A lakás mindössze néhány perc sétára található a körúttól és a Corvin Plázától, így a közlekedés és a szolgáltatások könnyen elérhetők. A modern elrendezésű otthon nappaliból, hálószobából, korszerű konyhából és igényes fürdőszobából áll. A terasz többféle módon hasznosítható — akár wellnessrészleg, pihenőzóna vagy kerti grillező is kialakítható rajta.
A társasház korszerű, hőszivattyús mennyezeti fűtés-hűtés rendszerrel és kiemelkedő hőszigeteléssel rendelkezik, ami alacsony rezsiköltséget biztosít. Az ingatlan rövid távú bérbeadásra (Airbnb) is engedélyezett, így befektetési célra is kiváló választás.
A nyugodt környezet, a modern technikai megoldások és a környék folyamatos fejlődése garantálja, hogy ez az ingatlan nemcsak otthonként, hanem értékálló befektetésként is kiemelkedő lehetőséget nyújt.
Kerület VIII
Település Budapest
Kerületrész Józsefváros - Corvinnegyed
Típus Tégla építésű lakás
Szobaszám 2
Energiatanúsítvány A++
Emelet 7
Lift Van
Fűtés Hőszivattyú
Kilátás Panorámás
Parkolás Parkoló övezet
Közös költség 25000 Ft/hó
Építés éve 2023



























