Budapest, VIII. kerület Jázmin utca
Jázmin utca, eladó 44 m2 -es tégla építésű lakás
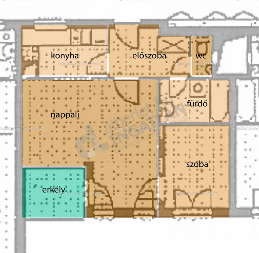
Eladásra kínálok Budapest VIII. kerületében, a Jazmin utcában egy 44 m²-es, 1+1 fél szobás, erkélyes lakást.
Az ingatlan egy 2007-ben épült, jó állapotú, liftes, hétszintes társasház negyedik emeletén található. A lakás déli tájolásának köszönhetően világos, jól benapozott. A nettó 44 m² alapterülethez egy 4,21 m²-es erkély is tartozik.
Elosztása praktikus: előszoba, külön WC, fürdőszoba, nappali és egy külön nyíló hálószoba. A lakás felszereltségéhez tartozik beépített riasztórendszer, valamint hűtő-fűtő klíma, amely egész évben kellemes hőmérsékletet biztosít.
A fűtés házközponti, a rezsiköltség kedvező, körülbelül 30 000 Ft havonta. Az épület téglaépítésű, rendezett, jó lakóközösséggel.
Lokációja kiváló: a közelben Corvin plaza, bevásárlási lehetőségek, kávézók, éttermek, valamint több egyetem is megtalálható.
Közlekedés: 3-as Metro, 4-6 villamos valamint több buszmegálló.
Keressen bizalommal!
Az ingatlan egy 2007-ben épült, jó állapotú, liftes, hétszintes társasház negyedik emeletén található. A lakás déli tájolásának köszönhetően világos, jól benapozott. A nettó 44 m² alapterülethez egy 4,21 m²-es erkély is tartozik.
Elosztása praktikus: előszoba, külön WC, fürdőszoba, nappali és egy külön nyíló hálószoba. A lakás felszereltségéhez tartozik beépített riasztórendszer, valamint hűtő-fűtő klíma, amely egész évben kellemes hőmérsékletet biztosít.
A fűtés házközponti, a rezsiköltség kedvező, körülbelül 30 000 Ft havonta. Az épület téglaépítésű, rendezett, jó lakóközösséggel.
Lokációja kiváló: a közelben Corvin plaza, bevásárlási lehetőségek, kávézók, éttermek, valamint több egyetem is megtalálható.
Közlekedés: 3-as Metro, 4-6 villamos valamint több buszmegálló.
Keressen bizalommal!
Kerület VIII
Település Budapest
Kerületrész Józsefváros - Corvinnegyed
Típus Tégla építésű lakás
Szobaszám 1+1
Emelet 4
Lift Van
Fűtés Házközponti
Kilátás Utcai
Parkolás Parkoló övezet
Légkondícionált Igen
Közös költség 20000 Ft/hó
Építés éve 2007


















