Budapest, XVIII. kerület Bocskai utca
Bocskai utca, eladó 180 m2 -es családi ház
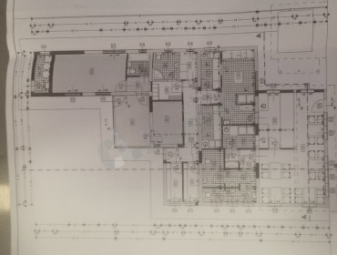
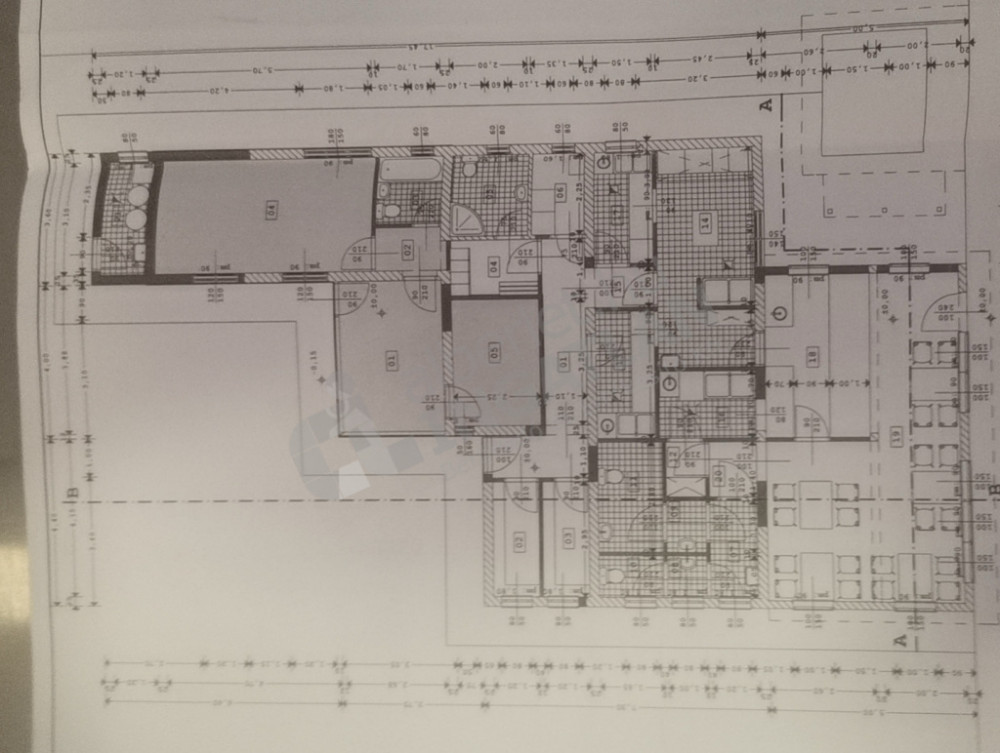
Eladó családi ház a Belsőmajor csendes és barátságos környezetében, Budapest XVIII. kerületében! Ez a 180 nm-es otthon ideális választás lehet családok számára, akik egy tágas és kényelmes otthont keresnek. A telken elhelyezkedő ház 604 nm területen fekszik, biztosítva ezzel elegendő helyet a kertben játszó gyerekeknek vagy akár kertészkedéshez.
A nappali különösen tágas, mintegy 55 nm, ami sok lehetőséget kínál az együttlétekhez és kikapcsolódáshoz. A konyha is bőséges helyet biztosít, körülbelül 40 nm-es területen, így könnyedén főzhet és étkezhet a család.
Az ingatlan három hálószobával rendelkezik, amelyek kényelmes alvást biztosítanak mindenkinek. A szobák méretei: 25 nm, 10 nm és 9 nm. Mindegyik hálószobához saját fürdőszoba és WC tartozik, ami kényelmet és privát teret nyújt a lakók számára.
A ház 2016-ban felújításon esett át, így modern és kényelmes kialakítással rendelkezik. Emellett 2023-ban új kazánt kapott, ami hozzájárul az energiahatékonysághoz és a lakók kényelméhez.
Ha szeretne otthont találni Budapest egy nyugodt és barátságos környékén, ne habozzon! Keressen minket még ma, hogy megtekinthesse ezt a csodálatos lehetőséget!
A nappali különösen tágas, mintegy 55 nm, ami sok lehetőséget kínál az együttlétekhez és kikapcsolódáshoz. A konyha is bőséges helyet biztosít, körülbelül 40 nm-es területen, így könnyedén főzhet és étkezhet a család.
Az ingatlan három hálószobával rendelkezik, amelyek kényelmes alvást biztosítanak mindenkinek. A szobák méretei: 25 nm, 10 nm és 9 nm. Mindegyik hálószobához saját fürdőszoba és WC tartozik, ami kényelmet és privát teret nyújt a lakók számára.
A ház 2016-ban felújításon esett át, így modern és kényelmes kialakítással rendelkezik. Emellett 2023-ban új kazánt kapott, ami hozzájárul az energiahatékonysághoz és a lakók kényelméhez.
Ha szeretne otthont találni Budapest egy nyugodt és barátságos környékén, ne habozzon! Keressen minket még ma, hogy megtekinthesse ezt a csodálatos lehetőséget!
Kerület XVIII
Település Budapest
Kerületrész Belsőmajor
Típus Családi ház
Szobaszám 4
Energiatanúsítvány D
Fűtés Cirkó
Kilátás Kertre néző
Parkolás Telken parkoló
Légkondícionált Igen




















